ЖИЗНЬ У МОРЯ
ДОМА В ПРИМОРЬЕ
Приморье
Дома расположены в Приморье — одном из самых живописных и престижных поселков Калининградской области, в шаговой доступности от Балтийского моря.

Чистый воздух, уникальный ландшафт, песчаные пляжи, прекрасные панорамные виды на Филинскую бухту, отличная транспортная доступность. Здесь есть все для комфортной жизни и отдыха.
Расположение
45 км до Калининграда
8 км до Светлогорска
Рядом: Филинская Бухта

500 метров до моря
Инфраструктура
Школа, детский сад, магазины, аптека, почта и кафе
все необходимое рядом с домом.
Наши проекты
Современные дома с продуманной планировкой и качественными материалами

Вид 1
Вид 2
Вид 3
Вид 4
21 000 000 ₽
Стоимость проекта
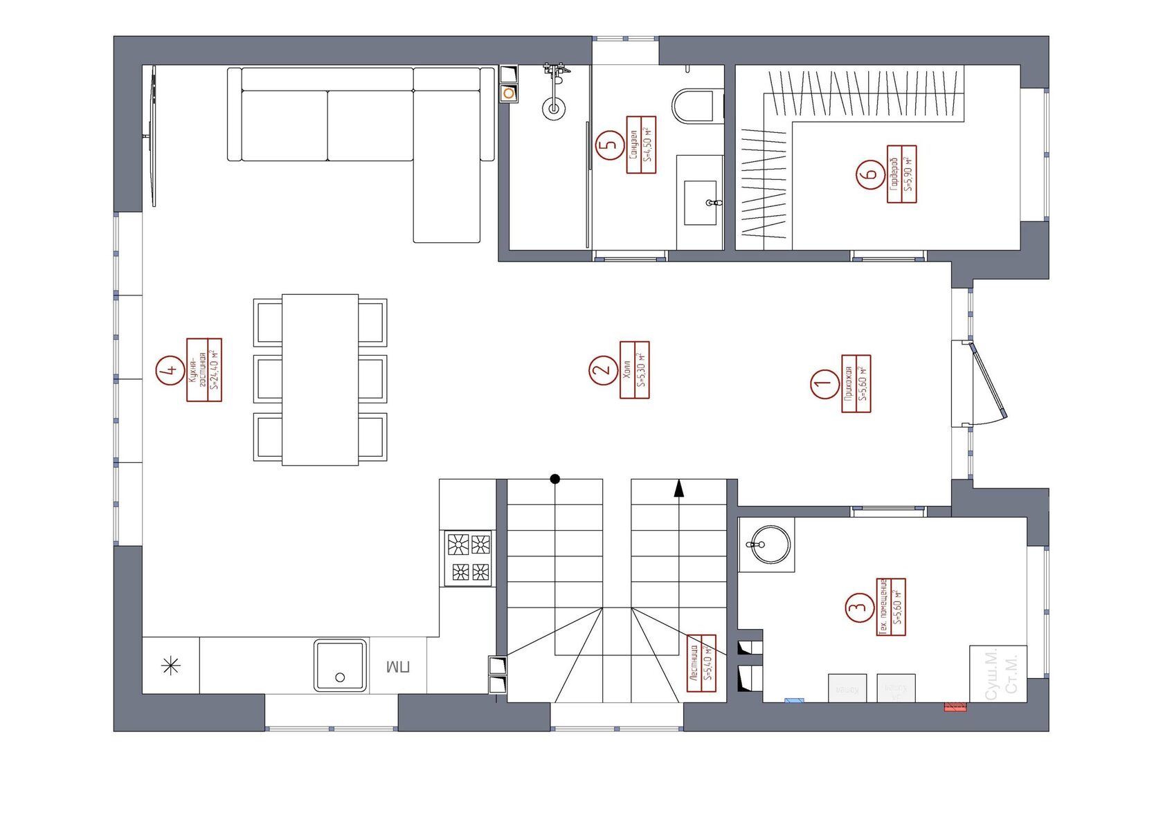
1 этаж
  • Кухня24,40 м²
  • Лестница4,40 м²
  • Холл5,30 м²
  • Санузел4,50 м²
  • Тех. помещение5,60 м²
  • Прихожая5,60 м²
  • Гардероб5,90 м²

2 этаж
  • Спальня13,30 м²
  • Гардероб4,80 м²
  • Санузел5,50 м²
  • Коридор2,80 м²
  • Санузел4,80 м²
  • Спальня21,40 м²
Планировка
План 1 этажа
🔍
1 этаж
План 2 этажа
🔍
2 этаж
Электричество
Свяжитесь с нами
Готовы ответить на все ваши вопросы и помочь с выбором дома


© 2026 PRIMORYE ESTATE
Россия, Калининградская область, поселок Приморье